24/7 Принимаем заявки
24/7 Расчет стоимости/Офис
24/7 Производство/Склад
Нашли дешевле - снизим цену!
ООО "ПрофСварСталь" производит широкий ассортимент деталей трубопроводов различного назначения, конфигураций и размеров, в том числе и воздухосборники проточные систем отопления и теплоснабжения – А1И серия 5.903-20.
Воздухосборники А1И серии 5.903-20 и 5.903-2.
Классификация воздухосборников А1И серии 5.903-20
Воздухосборники, в зависимости от места размещения, бывают горизонтальные и вертикальные.
Горизонтальные устанавливаются в высшей точке системы теплоснабжения на горизонтальном участке трубопровода. Патрубок входа воды у них располагается в нижней части одного днища, а патрубок выхода и штуцер для подключения автоматического воздухоотводчика - во втором днище.
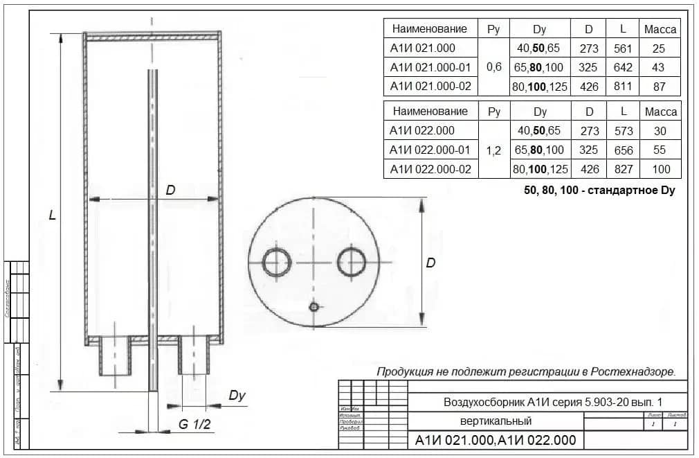
Вертикальные же воздухосборники устанавливается в высшей точке системы теплоснабжения на вертикальном участке трубопровода (стояке). Все три патрубка у него располагаются в нижнем днище. Данные воздухосборники предназначены для уменьшения колебания давления в воздухопроводах и для создания запаса воздуха. Могут использоваться в качестве ресиверов и сосудов для хранения азота, аргона и других инертных газов.
Проточный воздухосборник А1И применяется в системах отопления и теплоснабжения для отделения воздушных пузырьков от теплоносителя, что позволяет предотвратить появление «воздушной пробки» и, как следствие, сделать более продуктивной работу системы. Технически, воздухосборник представляет собой цилиндрическую емкость с плоскими либо эллиптическими приварными днищами. В отопительной системе проточные воздухосборники устанавливаются в максимально высокой точке трубопровода.К вертикальным относятся воздухосборники со следующими номерами чертежей:
Корпус и патрубки воздухосборника производятся из электросварной трубы согласно ГОСТ 10704-91. Плоское дно режут из металлического листа, а эллиптическое изготавливают согласно ГОСТ 17379-2001.
- Воздухосборник вертикальный с эллиптическими днищами на Ру 1,2 МПа (12 кгс/см²) А1И 018.000
- Воздухосборник вертикальный с плоскими днищами на Ру 0,6 МПа (6 кгс/см²) А1И 021.000
- Воздухосборник вертикальный с плоскими днищами на Ру 1,2 МПа (12 кгс/см²) А1И 022.000
- Воздухосборник горизонтальный с эллиптическими днищами на Ру 1,2 МПа (12 кгс/см²) А1И 017.000
- Воздухосборник горизонтальный с плоскими днищами на Ру 0,6 МПа (6 кгс/см²) А1И 019.000
- Воздухосборник горизонтальный с плоскими днищами на Ру 1,2 МПа (12 кгс/см²) А1И 020.000
Корпус и патрубки воздухосборника производятся из электросварной трубы согласно ГОСТ 10704-91. Плоское дно режут из металлического листа, а эллиптическое изготавливают согласно ГОСТ 17379-2001.
Воздухосборники серии А1И серия 5.903-2
Альбом чертежей серия 5.903-2 «Воздухосборники для систем отопления и теплоснабжения вентиляционных установок»
К вертикальным относятся воздухосборники со следующими номерами чертежей:
- Воздухосборник вертикальный А1И 011.000
- Воздухосборник вертикальный А1И 014.000
- Воздухосборник вертикальный А1И 015.000
К горизонтальным относятся воздухосборники со следующими номерами чертежей:
- Воздухосборник горизонтальный А1И 010.000
- Воздухосборник горизонтальный А1И 012.000
- Воздухосборник горизонтальный А1И 013.000
- разработан: Сантехниипроект Госстроя России
- утверждён: 23.10.1981 Главпромстройпроект Госстроя СССР
- заменён: Серия 5.903-20 «Воздухосборники для систем отопления и теплоснабжения вентиляционных установок»
К вертикальным относятся воздухосборники со следующими номерами чертежей:
- Воздухосборник вертикальный А1И 011.000
- Воздухосборник вертикальный А1И 014.000
- Воздухосборник вертикальный А1И 015.000
К горизонтальным относятся воздухосборники со следующими номерами чертежей:
- Воздухосборник горизонтальный А1И 010.000
- Воздухосборник горизонтальный А1И 012.000
- Воздухосборник горизонтальный А1И 013.000
Проточный воздухосборник А1И применяется при монтаже в трубопроводе, по которому перемещается поток (вода) с температурой не более +150°C при условном рабочем давлении не более 1,2 Мпа. для отделения воздушных пузырьков от теплоносителя, что позволяет предотвратить появление «воздушной пробки». Технически, воздухосборник представляет собой цилиндрическую емкость с плоскими либо эллиптическими приварными днищами. В отопительной системе проточные воздухосборники устанавливаются в максимально высокой точке трубопровода.
Корпус и патрубки воздухосборника производятся из электросварной трубы согласно ГОСТ 10704-91. Плоское дно режут из металлического листа, а эллиптическое изготавливают согласно ГОСТ 17379-2001.
Корпус и патрубки воздухосборника производятся из электросварной трубы согласно ГОСТ 10704-91. Плоское дно режут из металлического листа, а эллиптическое изготавливают согласно ГОСТ 17379-2001.
Более подробную информацию по ценам, срокам исполнения и возможным скидкам Вы можете получить у наших менеджеров по телефону: (909) 151 40 02 , (909) 151 43 02 или отправить заявку по электронной почте: profsvarstal@yandex.ru
Выполненные работы